+7 (800) 505-63-73
Пн - Пт: с 09:00 до 18:00
Пн - Пт: с 09:00 до 18:00
+7 (800) 505-63-73
L-образная рамка для напольного конвектора
L-образная рамка для напольного конвектора
L-образная рамка для напольного конвектора
L-образная рамка для напольного конвектора

L-образная рамка для напольного конвектора

0
Нет отзывов
Артикул: 4103
Поделиться списком
Ширина (мм)
X
Высота (мм)
Анодирование:
— нет
A1 - алюминий
A2-G23 золото
A2-C0 серебро
A2-C33 бронза
Цвет по RAL: RAL 9016
RAL 9016
Без покраски
RAL по факту
Выбрать другой цвет
Характеристики
Место применения В пол
Материал Алюминий
2 584
В корзину
Быстрый подбор в Telegram
Наш технический специалист поможет выбрать идеальную конфигурацию
Собственное производство
До 1000 выпускаемых единиц в день
Быстрая доставка по России
  • Описание
  • Характеристики
  • Отзывы
  • Доставка и оплата

L-образная рамка для напольного конвектора

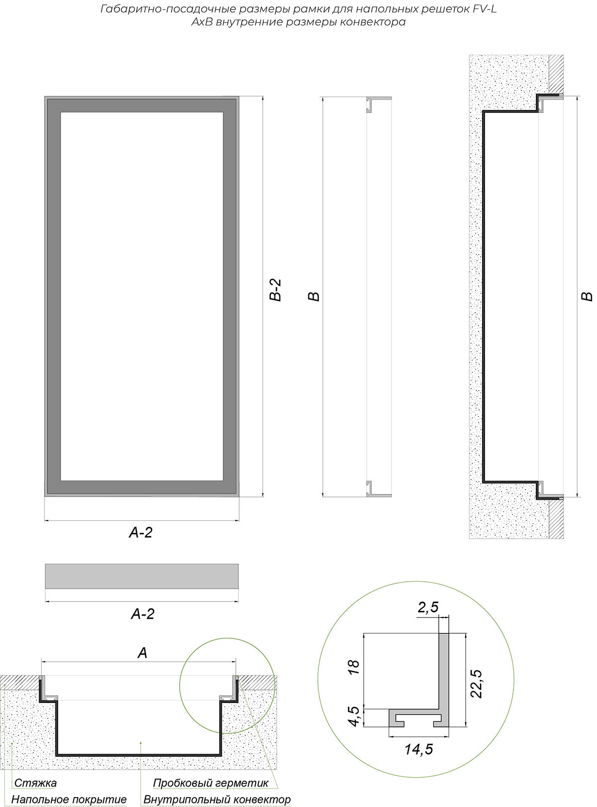
L-образная рамка представляет собой профессиональное решение для монтажа напольных конвекторов. Этот элемент обеспечивает жесткое крепление рулонной решетки и аккуратное примыкание к напольному покрытию, создавая законченный эстетичный вид.

Конструктивные особенности

Рамка обладает следующими техническими характеристиками:

  • Изготовлена из алюминиевого профиля АДЗ1 по ГОСТ 22233-2018
  • Стандартное покрытие - порошковая краска RAL 9016 (белый)
  • Возможность анодирования или окраски в другие цвета RAL
  • Жесткое основание для установки рулонной решетки

Варианты поставки и монтаж

Производитель предлагает два варианта комплектации:

1. Готовые рамки по размерам конвектора
2. Погонаж с кратностью 3 метра для самостоятельного раскроя

При монтаже зазор между рамкой и напольным покрытием заполняется пробковым герметиком, что обеспечивает плотное прилегание и дополнительную звукоизоляцию.

L-образная рамка для напольных конвекторов сочетает в себе функциональность и эстетику. Ее конструкция обеспечивает надежное крепление решетки и повышает жесткость всего корпуса конвектора.

При выборе рамки необходимо учитывать внутренние размеры конвектора и тип напольного покрытия. Возможность индивидуального подбора цвета позволяет идеально интегрировать элемент в любой интерьер.

Характеристики

  • Место применения
    В пол
  • Материал
    Алюминий
Отзывы покупателей
Добавить отзыв
Помогите другим пользователям с выбором - будьте первым, кто поделится своим мнением об этом товаре
Фотографии и видео покупателей
Без оценки

Оплата:
 

Оплата заказа юридическими и физическими лицами осуществляется на основании счёта/договора.

Доставка осуществляется при условии 100% предоплаты товара.

 

Доставка по Москве:
 

  • при заказе от 50 000 руб. доставка по Москве бесплатная.
  • при заказе на сумму менее 50 000 руб.  доставка рассчитывается в зависимости от зоны Москвы. Для расчета точной стоимости доставки необходимо обратиться к менеджерам по тел.: 8 (495) 730-63-73, 8 (926) 075-34-87, 8 (800) 505-63-73 (бесплатно со всех номеров).
     

Доставка по России:
 

Доставка до транспортной компании бесплатная, далее за счет покупателя.

График бесплатной доставки в транспортные компании:

  • Понедельник — Деловые линии, ПЭК.
  • Среда — любая ТК.
  • Пятница — Деловые линии, ПЭК.
     

Самовывоз:
 

Склад находится по адресу: Московская область, городской округ Мытищи, посёлок Кардо-Лента, ул. Садовая, д. 19

Пн - Чт.: с 09:00 до 18:00. Пт.: с 09:00 до 17:00

Похожие товары
Профиль для окантовки конвектора J-образный
Профиль для окантовки конвектора J-образный
Арт. 000184
Профиль L-образный для напольной решетки в конвектор (пог.м.)
Профиль L-образный для напольной решетки в конвектор (пог.м.)
Арт. 000197
Профиль Z-образный для решетки в конвектор (пог.м.)
Профиль Z-образный для решетки в конвектор (пог.м.)
Арт. 000198
Напольная вентиляционная решетка НПР, НПР-Р
Напольная вентиляционная решетка НПР, НПР-Р
Арт. 000092
Профиль для окантовки конвектора J-образный (пог.м.)
Профиль для окантовки конвектора J-образный (пог.м.)
Арт. 000196
Рулонная декоративная решетка для конвекторов FV
Рулонная декоративная решетка для конвекторов FV
Арт. 000183
Окантовочный профиль F-образный (пог.м.)
Окантовочный профиль F-образный (пог.м.)
Арт. 000190
Окантовочный профиль F-образный
Окантовочный профиль F-образный
Арт. 000185
Рассчитать стоимость
Получите бесплатный расчет стоимости через 10 минут в Telegram
Оставьте номер телефона. В течение дня мы подготовим вам варианты реализации и расчет стоимости.
Нужна консультация?
Наши специалисты ответят на любой интересующий вопрос
Задать вопрос