+7 (800) 505-63-73
Пн - Пт: с 09:00 до 18:00
Пн - Пт: с 09:00 до 18:00
+7 (800) 505-63-73
Профиль для окантовки конвектора J-образный
Профиль для окантовки конвектора J-образный
Профиль для окантовки конвектора J-образный
Профиль для окантовки конвектора J-образный
Профиль для окантовки конвектора J-образный

Профиль для окантовки конвектора J-образный

0
Нет отзывов
Артикул: 4101
Поделиться списком
Ширина (мм)
X
Высота (мм)
Анодирование:
— нет
A1 - алюминий
A2-G23 золото
A2-C0 серебро
A2-C33 бронза
Цвет по RAL: RAL 9016
RAL 9016
Без покраски
RAL по факту
Выбрать другой цвет
Характеристики
Место применения В пол
Материал Алюминий
775
В корзину
Быстрый подбор в Telegram
Наш технический специалист поможет выбрать идеальную конфигурацию
Собственное производство
До 1000 выпускаемых единиц в день
Быстрая доставка по России
  • Описание
  • Характеристики
  • Отзывы
  • Доставка и оплата

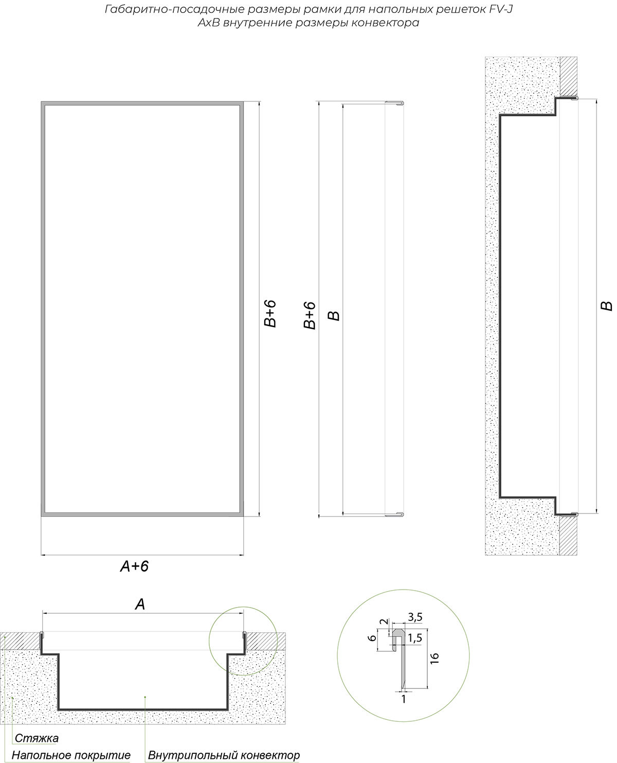
Профиль для окантовки конвектора J-образный

J-образный профиль предназначен для качественной окантовки и маскировки монтажных зазоров при установке внутрипольных конвекторов. Этот элемент обеспечивает аккуратное примыкание решетки конвектора к напольному покрытию, создавая законченный эстетичный вид.

Конструктивные особенности

Профиль обладает следующими техническими характеристиками:

  • Изготовлен из алюминиевого профиля АДЗ1 по ГОСТ 22233-2018
  • Стандартное покрытие - порошковая краска RAL 9016 (белый)
  • Возможность анодирования или окраски в другие цвета RAL
  • Поставляется в цвете решетки конвектора

Монтаж и комплектация

Профиль поставляется в нескольких вариантах:

1. Отрезками с запасом +50 мм к размерам конвектора (со срезом 90° для точной стыковки под 45°)
2. Погонными метрами с кратностью 3 метра

При монтаже возможна герметизация зазоров пробковым герметиком для достижения идеального примыкания к напольному покрытию.

J-образный профиль для окантовки конвекторов - это профессиональное решение для скрытия монтажных зазоров и создания безупречного интерьерного решения. Его конструкция разработана для простоты установки и долговечной эксплуатации.

При выборе профиля необходимо учитывать внутренние размеры конвектора и тип напольного покрытия. Возможность индивидуального подбора цвета позволяет идеально интегрировать окантовку в любой интерьер.

Характеристики

  • Место применения
    В пол
  • Материал
    Алюминий
Отзывы покупателей
Добавить отзыв
Помогите другим пользователям с выбором - будьте первым, кто поделится своим мнением об этом товаре
Фотографии и видео покупателей
Без оценки

Оплата:
 

Оплата заказа юридическими и физическими лицами осуществляется на основании счёта/договора.

Доставка осуществляется при условии 100% предоплаты товара.

 

Доставка по Москве:
 

  • при заказе от 50 000 руб. доставка по Москве бесплатная.
  • при заказе на сумму менее 50 000 руб.  доставка рассчитывается в зависимости от зоны Москвы. Для расчета точной стоимости доставки необходимо обратиться к менеджерам по тел.: 8 (495) 730-63-73, 8 (926) 075-34-87, 8 (800) 505-63-73 (бесплатно со всех номеров).
     

Доставка по России:
 

Доставка до транспортной компании бесплатная, далее за счет покупателя.

График бесплатной доставки в транспортные компании:

  • Понедельник — Деловые линии, ПЭК.
  • Среда — любая ТК.
  • Пятница — Деловые линии, ПЭК.
     

Самовывоз:
 

Склад находится по адресу: Московская область, городской округ Мытищи, посёлок Кардо-Лента, ул. Садовая, д. 19

Пн - Чт.: с 09:00 до 18:00. Пт.: с 09:00 до 17:00

Похожие товары
Напольная вентиляционная решетка НПР, НПР-Р
Напольная вентиляционная решетка НПР, НПР-Р
Арт. 000092
Окантовочный профиль F-образный (пог.м.)
Окантовочный профиль F-образный (пог.м.)
Арт. 000190
Рамка для конвектора Z-образная
Рамка для конвектора Z-образная
Арт. 000187
Профиль L-образный для напольной решетки в конвектор (пог.м.)
Профиль L-образный для напольной решетки в конвектор (пог.м.)
Арт. 000197
Профиль для окантовки конвектора J-образный (пог.м.)
Профиль для окантовки конвектора J-образный (пог.м.)
Арт. 000196
Рулонная декоративная решетка для конвекторов FV
Рулонная декоративная решетка для конвекторов FV
Арт. 000183
Решетка напольная для бассейнов ЛДП
Решетка напольная для бассейнов ЛДП
Арт. 000093
Профиль Z-образный для решетки в конвектор (пог.м.)
Профиль Z-образный для решетки в конвектор (пог.м.)
Арт. 000198
Рассчитать стоимость
Получите бесплатный расчет стоимости через 10 минут в Telegram
Оставьте номер телефона. В течение дня мы подготовим вам варианты реализации и расчет стоимости.
Нужна консультация?
Наши специалисты ответят на любой интересующий вопрос
Задать вопрос